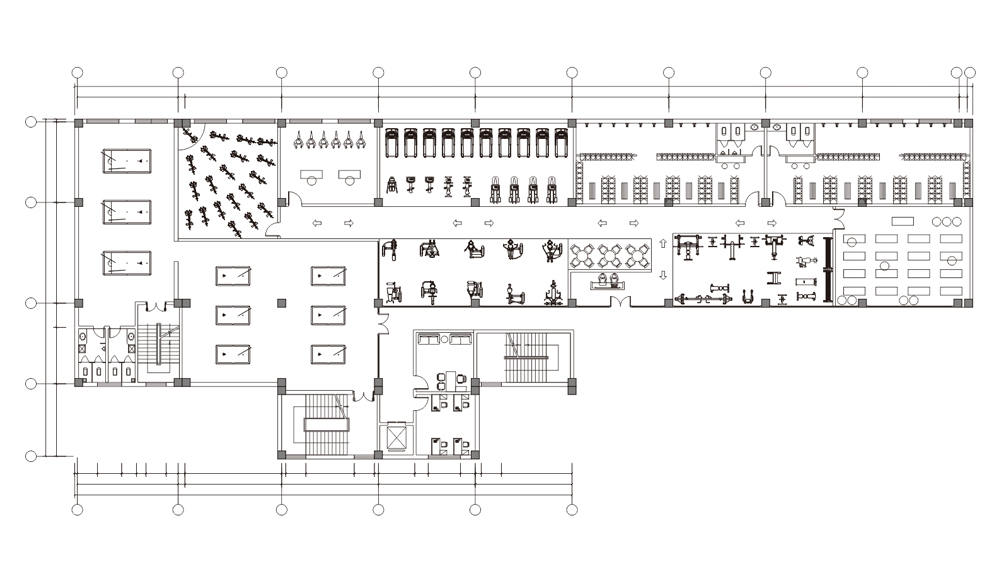
1000㎡健身房策划效果图
1000㎡健身房策划效果图

3D效果图

2D效果图
| 有氧系列 | ||||
| 序号 | 器材 | 型号 | 数量 | 图片 |
| 1 | 商用跑步机 | SH-5918 | 10 | |
| 2 | 商用动感单车 | SH-8860S | 20 | |
| 3 | 商用健身车 | SH-A1100G | 2 | |
| 4 | 商用健身车 | SH-A2100G | 2 | |
| 5 | 商用健身车 | SH-A5100G | 4 | |
| 6 | 商用健身车 | SH-5000T | 1 | |
| 力量无氧系列 | ||||
| 序号 | 器材 | 型号 | 数量 | 图片 |
| 7 | 坐式胸肌推举训练器 | SH-6801 | 1 | |
| 8 | 蝴蝶式胸肌训练器 | SH-6802 | 1 | |
| 9 | 坐式背肌训练器 (划船) | SH-6803 | 1 | |
| 10 | 坐式推肩训练器 | SH-6804 | 1 | |
| 11 | 高拉力背肌训练器 | SH-6806 | 1 | |
| 12 | 坐式蹬腿训练器 | SH-6809 | 1 | |
| 13 | 大腿伸展训练器 Leg Extension | SH-6810 | 1 | |
| 14 | 大腿屈伸训练器 | SH-6812 | 1 | |
| 15 | 躯干式转动训练器 | SH-6818 | 1 | |
| 16 | 大飞鸟(可调节) | SH-6852 | 1 | |
| 17 | 史密斯机训练架 | SH-6853 | 1 | |
| 18 | 奥林匹克水平推举椅 | SH-68721 | 1 | |
| 19 | 奥林匹克上斜推举椅 | SH-6873 | 1 | |
| 20 | 奥林匹克杠铃片挂架 | SH-6856 | 1 | |
| 21 | 多重可调节练习椅 | SH-6857 | 1 | |
| 22 | 背部伸展练习器 | SH-6858 | 1 | |
| 23 | 二头肌练习椅 | SH-6859 | 1 | |
| 24 | 水平练习椅 | SH-6878 | 1 | |
| 25 | 可调节下斜推举/腹肌练习椅 | SH-6879 | 1 | |
| 26 | 杠铃架 | SH-6883 | 1 | |
| 27 | 双层哑铃架(需另配哑铃) | SH-6884 | 1 | |
| 28 | 哑铃 | SH-R390 | 1 | |
| 29 | 提腿练习器 | SH-6886 | 1 | |
| 30 | 卷腹练习器 | SH-6887 | 1 | |
| 31 | 推肩练习椅 | SH-6888 | 1 | |
| 32 | 杠铃片 | 大孔包胶 | 1 | |
| 33 | 加长举重杆 | SH-OB86 | 3 | |
| 34 | W型举重杆 | SH-OB47 | 1 | |
本文版权归网站所有,转载请联系并注明出处:
http://127.0.0.1/article-detail/WkLqd4kb